MENU
トップ
デザイン
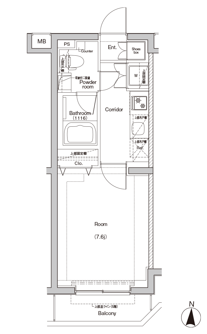
間取り
専有部仕様
共用部仕様
アクセス
ロケーション
物件概要
現地案内図
ROOMPLAN
印刷する